·1 min read·160
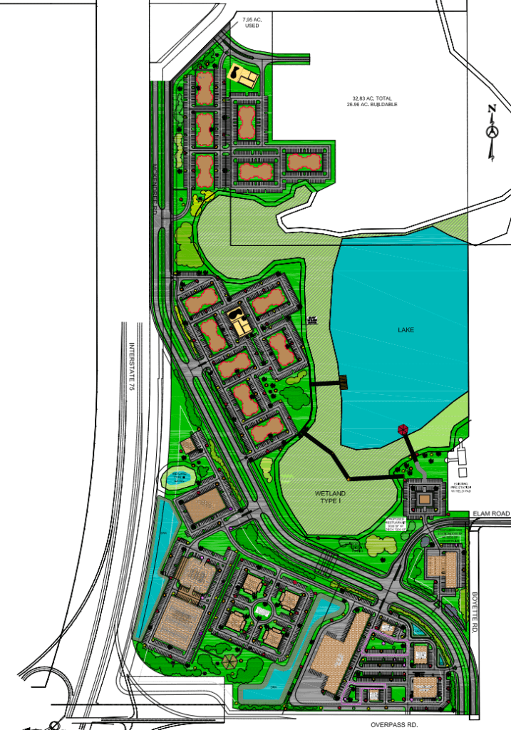
Check out this soon to be developed commercial employment center in Wesley Chapel. This will likely bring many jobs to the area! More information coming soon! To read more about the I75 Exit to be constructed at Overpass Road in Wesley Chapel, visit this page.
160 views
Comments
Sign inas a community member to join the conversation. It's free!
Own a local business?
Get your business in front of Wesley Chapel Community Websitereaders. Free ad design · No contracts







